全国服务热线

0757-82017766
公司动态 公司动态

公司动态

终端巡礼 | 尊龙凯时平台入口蒙自旗舰店鉴赏!

发布时间:2022-09-06阅读:

1-22111910415K01.png

云南—蒙自

Name项目名称 |云南蒙自尊龙凯时平台入口陶瓷·岩板旗舰店

Area项目面积 | 630㎡(两层)

Address项目地址 | 云南省蒙自双河小区红河建材城二期

Time完工时间 | 2022年9月

1-2211191042321M.png

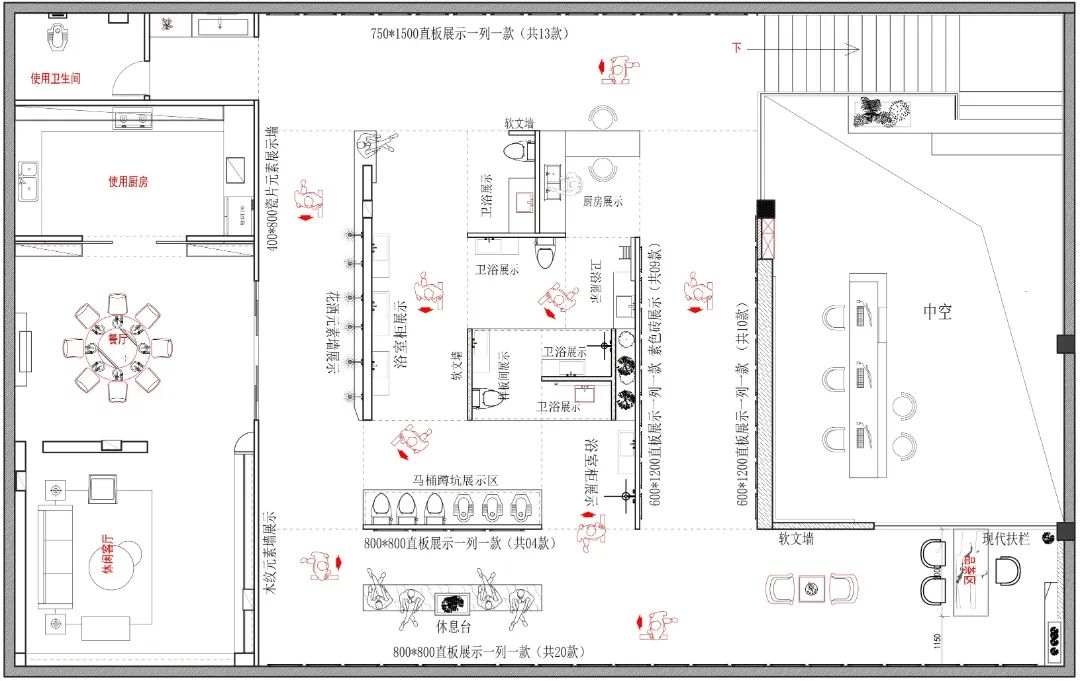
(一层平面图)


1-22111910430W55.jpg

(二层平面图)

消费的升级,带动的不仅仅是消费结构的升级,随之而来的还有消费体验的升级!对于产品的选择,也渐渐从重“价”,慢慢转变为重“质”。

而尊龙凯时平台入口蒙自旗舰店立足当地消费者的需求,以潮流商业空间设计,配套完善的服务体系,为当地消费者营造良好的购物环境!

1-221119104400412.png

—— 大堂 ——

利用空间内退,强化视觉重点,足够的空间层高拉升空间整体的视觉,墙地一体的设计让空间更显沉稳大气!

1-221119104414L4.png

通过利用尊龙凯时平台入口标准色“爱马仕橙”为点缀,保持了单一空间的独立性与神秘感,勾起进店客户对门店的好奇!

1-221119104424245.png

—— 样板间 ——

1-221119104434507.png

以系统化的产品设计展示,将品牌多元化的产品充分展示!每个系列多种升级工艺的呈现,让到店的每一位客户都能根据自身家装的需求找到合适的产品!

1-22111910444C17.png

1200X600MM、750X500MM、900X1800MM、岩板大板,将时下流行的产品系统化展示,无论是轻奢风、简约风、现代风等都能轻松驾驭!

1-221119104455219.png

选材区域的设计上,在展现品牌调性的同时,通过与灯光的和谐搭配,最大限度突出每一款瓷砖的质感、色感、肌理感,使其完美呈现于品鉴者面前。

—— 模拟——

1-2211191045243J.png

犹如将一个客餐厅实样搬到展厅里,发挥连纹系列产品的优势,兼顾墙面与地面的搭配应用,既保持了空间中的稳重与格调,也让空间保持一定的个性,给人一种眼前一亮的感觉!

1-221119104534W6.png

产品与空间相融打造出温馨和静谧的沉浸式产品体验区,令消费者有身临其境的感知,用每一寸设计唤醒消费者对空间的归属感。


—— 团队 ——

1-22111910454C56.png

德利蒙自旗舰店中,

我们看到的不仅是设计,

更是对现代住宅生活的一种探索,

回归用户真实的需求,

只为让每位消费者到店都有更好的消费体验!


最新资讯

在线咨询

咨询获取更多招商信息和资料以及产品画册
在线咨询